Villa F3 Economique
- Site de Kamboinsin
Prix: 29 900 000 FCfa
- Superficie
- 250 m2
- Chambre
- 2
- Salle de séjour
- 1
- Terrasses
- 2
- Salle a manger
- 0
- Garage
- 0
- Cuisine
- 1
- Salle de bain
- 2
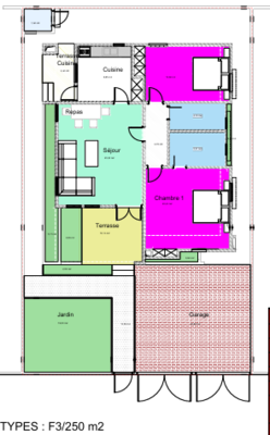
Description
Découvrez cette charmante villa F3 économique située sur le site résidentiel de Kamboinsin,
dans le cadre du Programme National de Construction de Logements.
Cette villa de plain-pied, construite sur une parcelle de 250 m²,
offre un agencement optimisé pour le confort et la fonctionnalité :
Caractéristiques principales :
Superficie habitable : environ 96.21 m²
2 chambres spacieuses, idéales pour une famille ou un couple
1 salon-séjour lumineux de 25,30 m², parfait pour recevoir
1 cuisine fonctionnelle
2 salles de bain
Terrasse avant et arrière pour moments de détente
Jardin privatif pour vos loisirs ou potager
Design sobre et économique, adapté aux budgets maîtrisés tout en garantissant une qualité de vie agréable.
Située dans une zone en pleine croissance, cette villa constitue une excellente opportunité d’investissement ou d’accession à la propriété
- Localisation
Offres similaires
Villa F4 économique
36.500.000 Fcfa
- 3 chambres
- 2 salles de bain
- 300 m2
Villa F5 économique
43.000.000 Fcfa
- 4 chambres
- 3 salles de bain
- 400 m2




