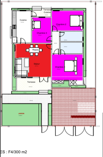
Villa F4 Economique
- Site de Kamboinsin
Prix: 36 500 000 FCfa
- Superficie
- 300 m2
- Chambre
- 3
- Salle de séjour
- 1
- Terrasses
- 2
- Salle a manger
- 1
- Garage
- 1
- Cuisine
- 1
- Salle de bain
- 2
Description
Découvrez cette charmante villa F4 économique située sur le site résidentiel de Kamboinsin,
dans le cadre du Programme National de Construction de Logements.
Cette villa de plain-pied, construite sur une parcelle de 300 m²,
offre un agencement optimisé pour le confort et la fonctionnalité :
Caractéristiques principales :
Superficie habitable : environ 121 m²
3 chambres spacieuses, idéales pour une famille ou un couple
1 salon-séjour lumineux de 30.21 m², parfait pour recevoir
1 cuisine fonctionnelle; 1 salle a manger
2 salles de bain indépendant; 1 garage
Terrasse avant et arrière pour moments de détente
Jardin privatif pour vos loisirs ou potager
Design sobre et économique, adapté aux budgets maîtrisés tout en garantissant une qualité de vie agréable.
Située dans une zone en pleine croissance, cette villa constitue une excellente opportunité d’investissement ou d’accession à la propriété
- Localisation
Offres similaires
Villa F5 économique
43.000.000 Fcfa
- 4 chambres
- 3 salles de bain
- 400 m2
Villa F3 économique
29.900.000 Fcfa
- 2 chambres
- 2 salles de bain
- 250 m2




